Home
Home Plans
Communities
Homes Available
Preferred Lenders
About Us
Contact Us
CONTACT US
Two Story
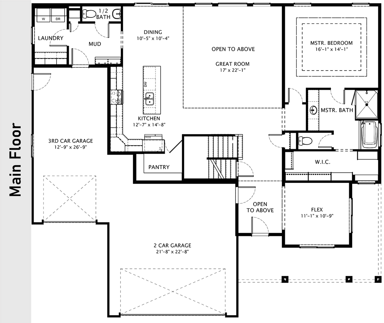
Hayden
This is some text inside of a div block.
Download Floor Plan
Request Info
PLAN Details
Features of this home plan.
This large two-story room allows you to see the first floor from the upstairs loft. This home also features large windows allowing for lots of natural light.
pin link
4
beds
2.5
bath
Finished:
3,171
sq ft
Main Floor:
1,782
sq ft
Upper Floor:
1,389
sq ft
Optional Basement:
1,800
sq ft
Gallery
Step inside a virtual tour
No items found.
Other House Plans
These might be of interest to you.
Chateau
Two Story
4
beds
2.5
bathrooms
1,653
sq ft
Beachwood
Two Story
4
beds
2.5
bathrooms
2,694
sq ft
Briarwood
Two Story
4
beds
2.5
bathrooms
2,127
sq ft
See all house plans
Start your dream home today!
We strive to build each of our homes with YOUR family in mind. Give us a call, text or email to get started!
Contact
© Sierra Homes. All rights reserved.