Home
Home Plans
Communities
Homes Available
Preferred Lenders
About Us
Contact Us
CONTACT US
Two Story
Monroe
This is some text inside of a div block.
Download Floor Plan
Request Info
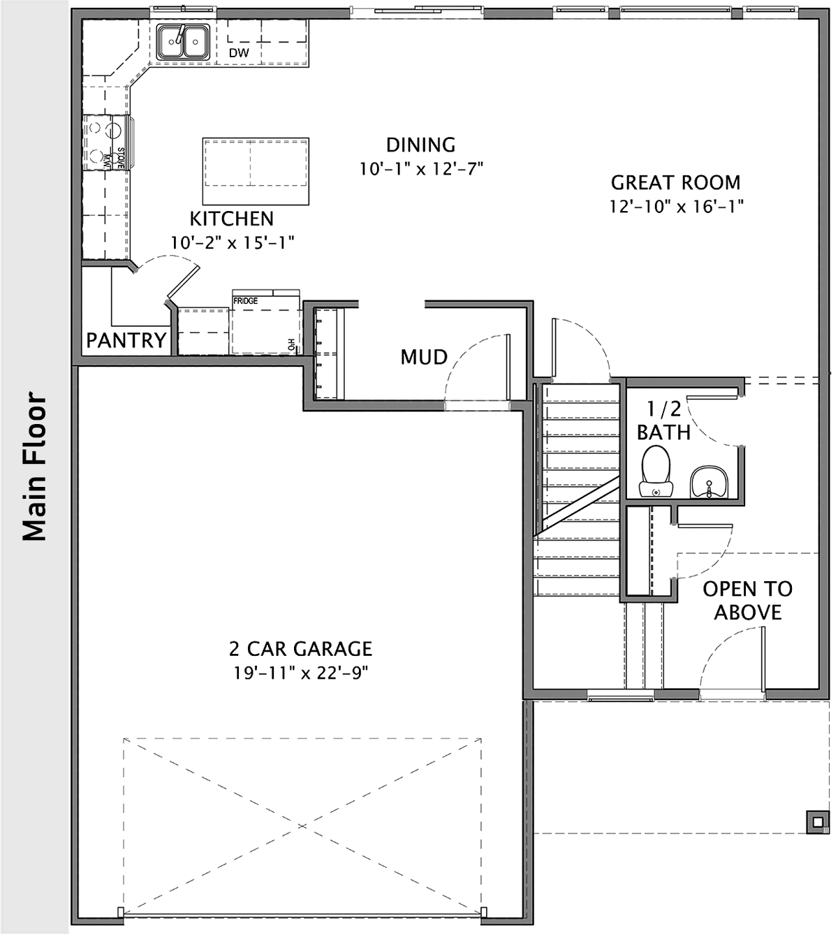
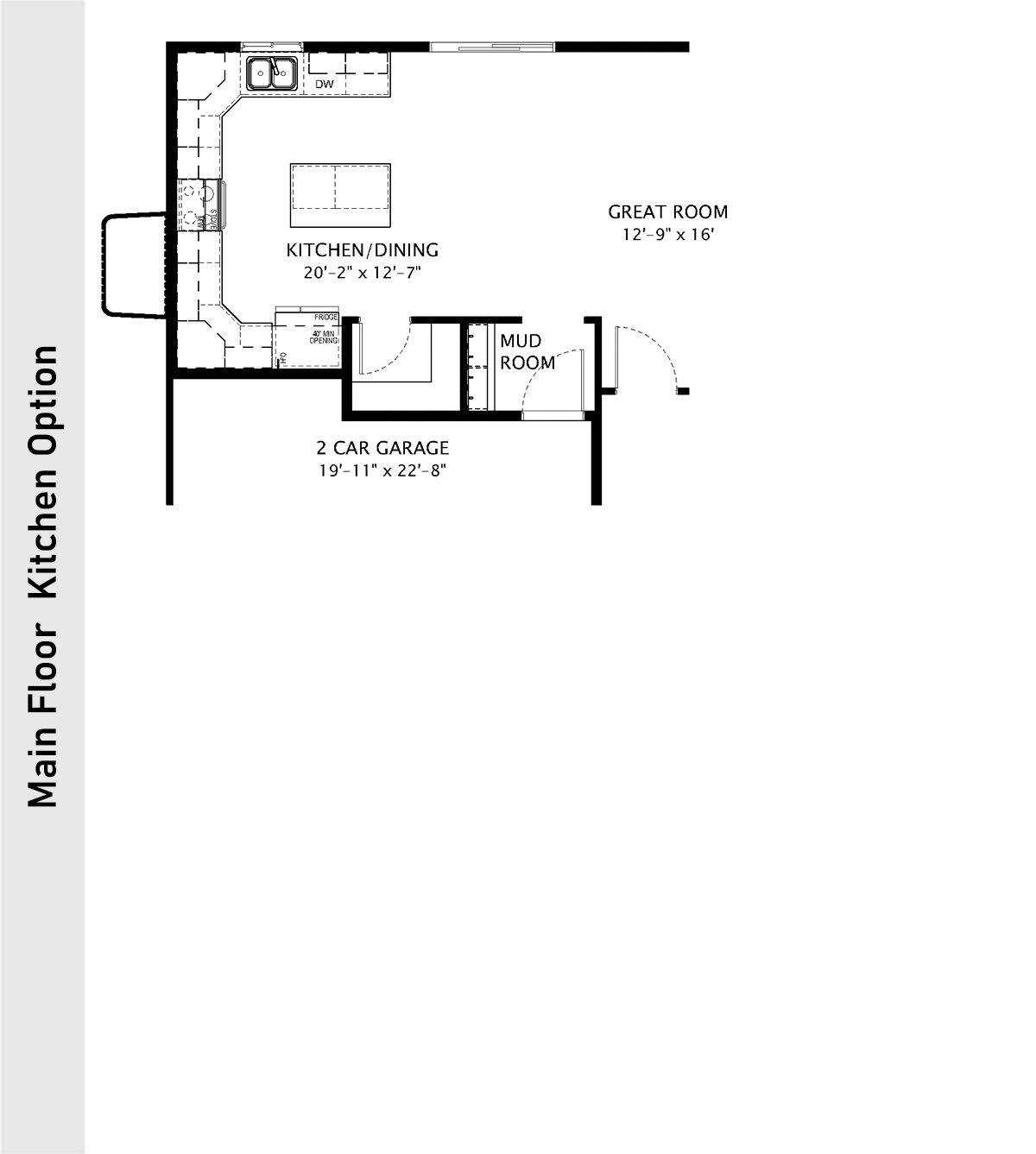
PLAN Details
Features of this home plan.
The huge master bedroom in this home features a beautiful tray ceiling and a large walk-in closet. There is also the option for an extra bedroom, bathroom and a family room in the basement.
pin link
4
beds
2.5
bath
Finished:
1821
sq ft
Main Floor:
767
sq ft
Upper Floor:
1054
sq ft
Optional Basement:
778
sq ft
Gallery
Step inside a virtual tour
No items found.
Other House Plans
These might be of interest to you.
Savannah
Two Story
4
beds
2.5
bathrooms
2,911
sq ft
Riverside
Two Story
3
beds
3
bathrooms
1,668
sq ft
Honeycrisp
Two Story
4
beds
2.5
bathrooms
1,795
sq ft
See all house plans
Start your dream home today!
We strive to build each of our homes with YOUR family in mind. Give us a call, text or email to get started!
Contact
© Sierra Homes. All rights reserved.